
No hay progreso, no hay revolución de las épocas en las vicisitudes del saber, sino, a lo sumo, permanente y sublime recapitulación.
ECO, Umberto ~ El nombre de la rosa, 1980
En determinadas circunstancias, las inercias de que venimos tratando se transforman en los rastros que persiguen la sociedad, la cultura o la historia. A su vez, los rastros tienden a formalizarse como líneas, y las líneas determinan orientaciones.
Las primeras orientaciones que definen a la humanidad son, naturalmente, las celestes. El sol se resiste, año tras año, a variar el modo en que abre y cierra el día; las estrellas permiten al explorador avezado el viaje seguro a puerto. Este y oeste, mediodía y septentrión, son implacables a todos los designios humanos, incluidos los de la Iglesia. Así, cuando en los siglos XVII–XVIII se extiende la moda de las meridianas solares como forma de medir el paso del tiempo y de las constelaciones, las líneas que estas imponen entran en claro conflicto con la arquitectura de los templos. Las medidas que deben tomar maestros como Luigi Vanvitelli en Santa Maria degli Angeli, en Roma, muestran la violencia inherente a cualquier conflicto entre orientaciones.

En Ámsterdam, la Oude Kerk es la única estructura del casco histórico que no está alineada según el trazado de los canales. En un ejercicio con reminiscencias de aquella planta de Ronchamp de Le Corbusier sobre los restos de la vieja iglesia precedente, el artista Krijn de Koning insertó en 2010 una «parcela» obediente, que siguiera la misma dirección de las demás, sobre la cual dispuso un evocador campo de juegos.
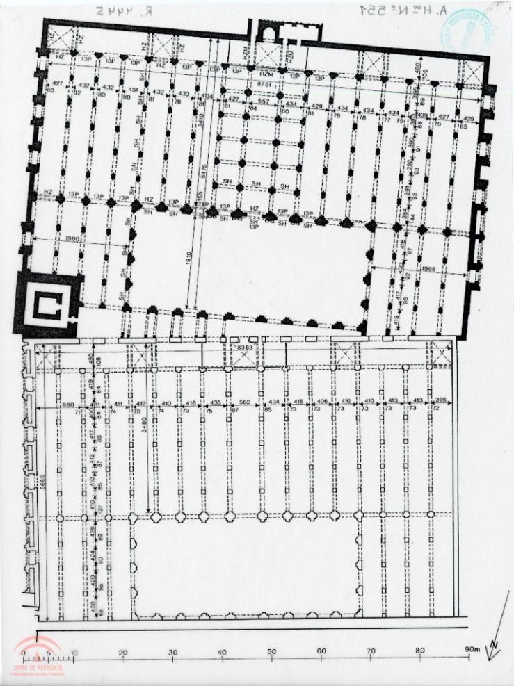
Uno de los preceptos principales de la religión islámica es la orientación del rezo hacia La Meca. Como se constata en las salas de oración que proliferan en El Cairo, esta simple pero férrea condición es capaz de generar espacios y soluciones de compromiso con gran interés arquitectónico, auténticas lecciones intemporales.

Probablemente el ejemplo más extremo a que ha dado lugar esta práctica, y uno de los más conocidos, sea el de la Mezquita Kutubía de Marrakech. La primera Kutubía fue construida por la nueva dinastía almohade entre 1147 y 1157 con alguna desviación respecto a la dirección correcta del rezo. Hacia el final de su construcción, sin embargo, se tomó la drástica decisión de «corregir» la inclinación, en realidad empeorándola en 5º. Que fuera un error, en definitiva, era lo de menos. El cambio de orientación era una demostración de pureza y renovación; la nueva mezquita se hizo exactamente igual en todo a la precedente —mismas arcadas, patio y naves—, y en ese sentido fue profética encarnación de lo que le ocurriría a los almohades, quienes habrían de correr la misma suerte que sus predecesores en la región.
Todo cambio de orientación es, pues, un cambio ideológico. Consiste en imponer una forma de pensar el mundo que se cree intrínsecamente distinta a la anterior y, dado que ninguna cultura hasta el momento se ha considerado inferior en lo moral a las que le han precedido, también intrínsecamente mejor.

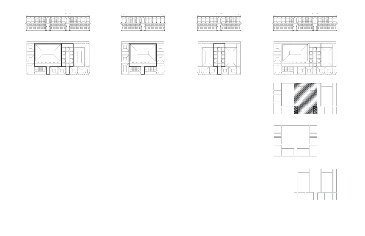
Podemos acabar este breve recorrido con dos historias que rescatar del Renacimiento italiano. La primera trata sobre el peculiar y desastrado encuentro entre dos edificios del mismo arquitecto, Sansovino, en Venecia: el Palazzo della Zecca y la Biblioteca Marciana.
La causa principal de que estas dos construcciones se traben con tan buen acuerdo como Tyson y Holyfield es que nunca se pensaron para estar unidas. Así lo muestra un dibujo de la escuela de Lodovico Pozzoserrato, en el que se contemplan las últimas edificaciones medievales que aún marcaban la salida a la laguna de la archiconocida Piazza San Marco. Vincenzo Scamozzi, el arquitecto que tuvo la fortuna de heredar la clientela del mismo Sansovino y de Palladio, nada menos, concluyó ambos edificios prolongando las líneas de la Biblioteca independientemente de su concepción original de 7–3–7 módulos, que aún puede leerse en la planta.
Aún más interesante resulta saber que Scamozzi también prolongó la Biblioteca hacia el lado contrario, esta vez para construir las Procuratie Nuove de la plaza. Aquí, en cambio, hizo gala de una gran sutileza al «corregir» a su maestro, reduciendo levemente el friso que aquel había dispuesto. La comparativa entre estas dos formas de coser una intervención urbana puede decirnos tanto sobre las variaciones en el sentir de una época como la lectura de la abundante tratadística que las acompañó.

En 1504, el gobierno de Florencia encargó a los maestros Leonardo y Miguel Ángel la decoración del Salón de los Quinientos, pieza principal del Palazzo Vecchio. A cada uno se le reservó una de las paredes para que escenificara una victoria militar florentina, pero ninguna de las dos obras se concluyó. La de Miguel Ángel, que había pasado al servicio del papa en Roma, fue troceada por su rival Bartolomeo Bandinelli en 1512 con el regreso de los Médicis al poder.
Leonardo, por su parte, abandonó la suya en 1505–6; si bien se hallaba muy avanzada, consideraba que había fracasado la técnica que estaba empleando como sustituta del temple. Durante varias décadas se hicieron copias de ella, como el grabado de Lorenzo Zacchia de 1553 en el que debió basarse este dibujo de Rubens. Pero finalmente, en la década de 1560, Giorgio Vasari fue encargado por la Signoria para ampliar y redecorar la misma sala, creando las nuevas representaciones de las glorias florentinas que aún pueden contemplarse en la actualidad. Aquí habría acabado la historia de este famoso cuadro perdido, si no fuera por algo que ocurrió en fecha bastante reciente.
Desde los años 70 del siglo XX, un equipo de investigadores lleva tratando de demostrar que el cuadro original de Leonardo sigue oculto tras el mural. Para ellos, la inscripción cerca trova («[quien] busca, encuentra») visible en uno de los estandartes no sería sino una pista que Vasari, siempre respetuoso con la obra de los grandes maestros, habría dejado para nosotros —búscala, está ahí—. En 2000–3, Maurizio Seracini, el especialista que continúa el proyecto a día de hoy, pudo demostrar que hay una cámara de aire de 1 a 3 cm entre la pintura y la pared posterior. En 2012 pudieron tomarse muestras de este paramento que concuerdan con la composición de los pigmentos que se empleaban a comienzos del siglo XVI. En ese momento, las autoridades paralizaron las catas temiendo dañar lo existente. Volvía a suscitarse la enésima reformulación de la eterna pregunta del restauro: ¿qué tiene más valor?
A día de hoy, lo único que nos queda es ser tan tenaces como Seracini; ya se trate de leyenda o hallazgo, arquitectura o investigación, lo que está claro es que chi cerca, trova.
Esta entrada resume la tercera y última parte de una presentación realizada en la ETSA de Sevilla el 13 de diciembre de 2019 en el marco de la asignatura «Arquitectura y Patrimonio», por invitación del profesor Ricardo Alario López.



