
Well, now that he’s finished one building, he’ll go write four books about it.
Frank Lloyd WRIGHT, sobre LE CORBUSIER
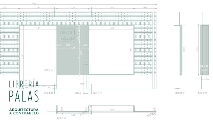
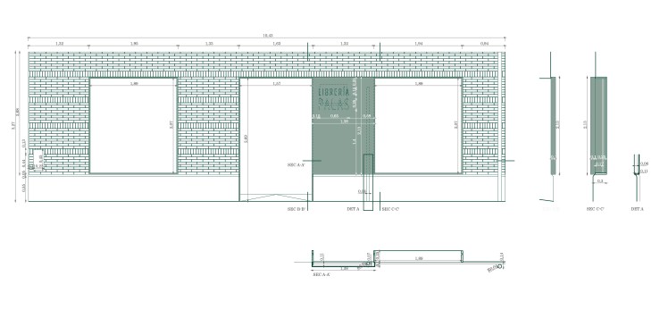
Desde que se abriera al público en 1980, la librería Palas ha sido un referente en Sevilla. El proyecto original ya destacaba entre los establecimientos de su género, al apostar por una fachada muy abierta, de líneas sencillas, y un acceso central secuenciado. Pero el paso del tiempo ha dejado su huella en unos paramentos invadidos por canalizaciones, huecos, señales y otras interferencias.
La intervención propuesta en la librería Palas persigue la renovación de su interfaz privado-público con una estrategia de adición-sustracción: añadir lo imprescindible, retirar lo innecesario. Una actuación que oculta y reduce al mínimo el ruido de fondo para transmitir su mensaje con la máxima claridad posible, tratando de recuperar la sencillez y sobriedad subyacentes.
Con apenas un rascado y lavado de la desgastada y oscurecida fábrica de ladrillo, que había padecido durante décadas los humos del tráfico de la calle Asunción, así como la limpieza del zócalo de granito, se devuelve a la fachada un aspecto más próximo al original.
Igualmente, junto con la retirada de algunos elementos superfluos y de la rotulación y cartelería preexistentes, que alteraban el ritmo de la fachada, se incorpora una cuidada pieza de acero a medida de gran formato que, además de conferir al establecimiento una nueva identidad corporativa, permite ocultar los objetos de mayor impacto (aire acondicionado, bajante…) y dar una mayor continuidad visual al frente de la librería.
Con esta mínima inversión, la librería se inscribe en una actitud contemporánea en cuanto a comunicación con el espacio público, sacando partido a su posición privilegiada en la principal arteria peatonal del barrio de Los Remedios.







Cliente: Librería Palas
Localización: Calle Asunción, Sevilla
Proyecto y ejecución: 2017
Clasificación: Reforma, Escaparatismo, Diseño Gráfico
Estructura y montaje: Sebastián de Alba
Impresión gráfica: Los Tipejos
